
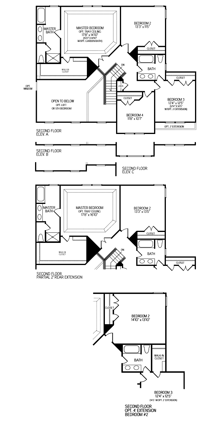
Second Floor

About Us - Communities - Single Family - Townhome - Showcase - Locator Map
All Pricing, Square Footage, and Availability
are subject to change without notice.
All models shown with optional features.
Greentree Homes - 14900 Southlawn Lane - Rockville,
Maryland 20850
tel: (301) 424-8336 - fax: (301) 762-7686
- email: info@buygreentreehomes.com